Ort: Basel
Aufgabe: Entwurf und Detailplanung
Zusammenarbeit: Addministra GmbH, Pratteln
Der Pharmakonzern Novartis gilt als Pionier in der Branche. Die Forschungsarbeit und die Entwicklung pharmazeutischer Produkte bedingen langjährige Arbeitsprozesse in wechselnden Teamformationen. Nicht zuletzt deshalb nimmt Novartis das Thema Arbeitswelt besonders ernst. In enger Zusammenarbeit mit diesem anspruchsvollen Kunden entwickelte MACH für die Firmenzentrale des Novartis-Campus neue Büroräumlichkeiten, die den Abläufen veränderter Arbeitsmodelle gerecht werden. Während heute «Activity Based Working» in vielen Unternehmen Standard ist, bestand die Herausforderung damals darin, ein solches Konzept überhaupt erst zu erarbeiten. Ziel von MACH war das Schaffen einer angenehmen, gesunden und inspirierenden Arbeitsatmosphäre.
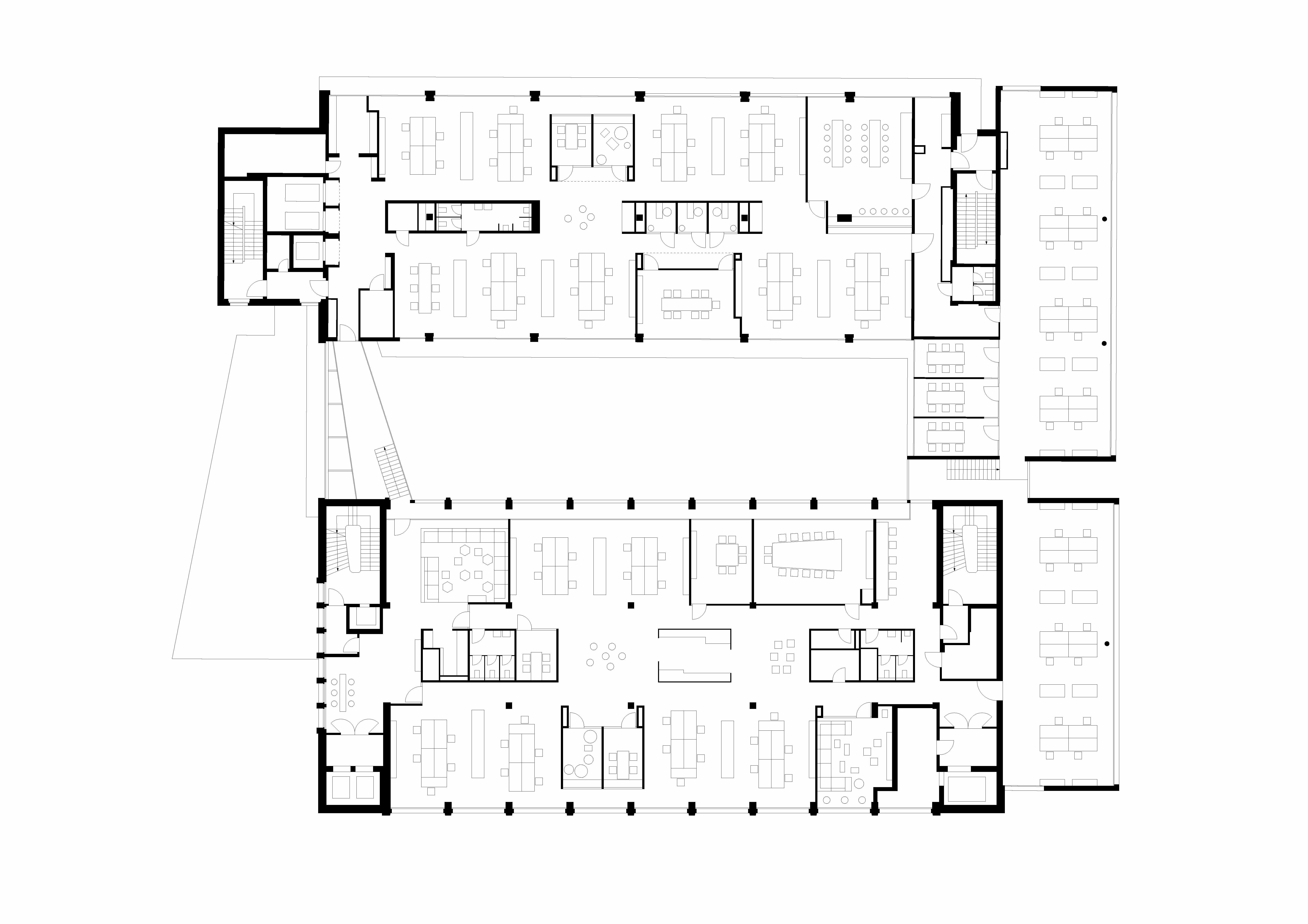
Das bereits existierende 1.300-Quadratmeter-Grossraumbüro strukturierte MACH in mehrere Zonen. Ähnlich wie in einer Stadt entwarfen die Architekten verschiedene Quartiere, welche die Diversität des Arbeitsalltags widerspiegeln. Eine Kaffee- und eine Tee-Bar dienen dabei der Orientierung. Die unterschiedlichen Bereiche werden entweder für Arbeitsprozesse – vom selbständigen bis zum teamorientierten Arbeiten – genutzt wie auch für Erholungsmomente dazwischen.
Um den Unternehmergeist zu fördern, zu dem Novartis sein Personal ermutigt, entwarf MACH unterschiedliche Tools wie etwa Schreibwände zum Festhalten von Ideen. Auch die vielgestaltigen Raum- und Möbeltypologien unterstützen das dynamische Arbeiten dieser global agierenden Firma.


Grundriss