Ort: London
Aufgabe: Bauherrenberatung, Entwurf, Detail- und Ausführungsplanung
Grafikdesign: Niclas Sellebraten, Stockholm
Presse: Architectural Digest, Nov 05 - Japanese Mag, 2005
Das aussergewöhnliche Interieur war von zentraler Bedeutung für den Erfolg dieses modernen Dim Sum-Restaurants im Zentrum von London. Für die internationale Implementierung der Kette stand für MACH deshalb die Balance zwischen einer charakteristischen Atmosphäre einerseits und einer möglichst praktischen und kosteneffizienten Lösung andererseits im Vordergrund.
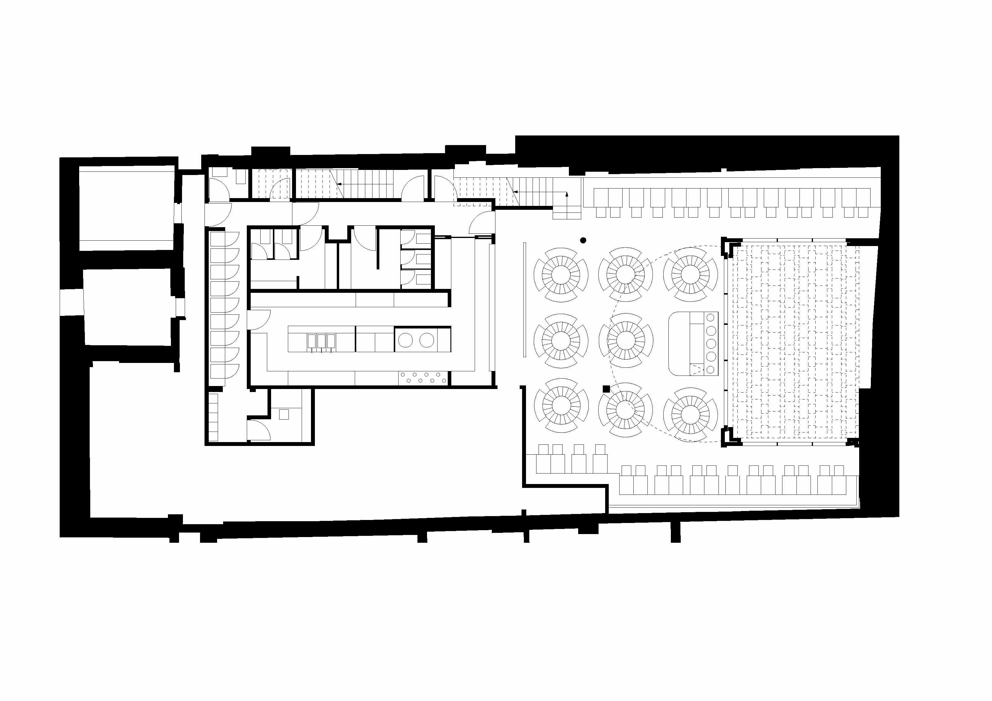
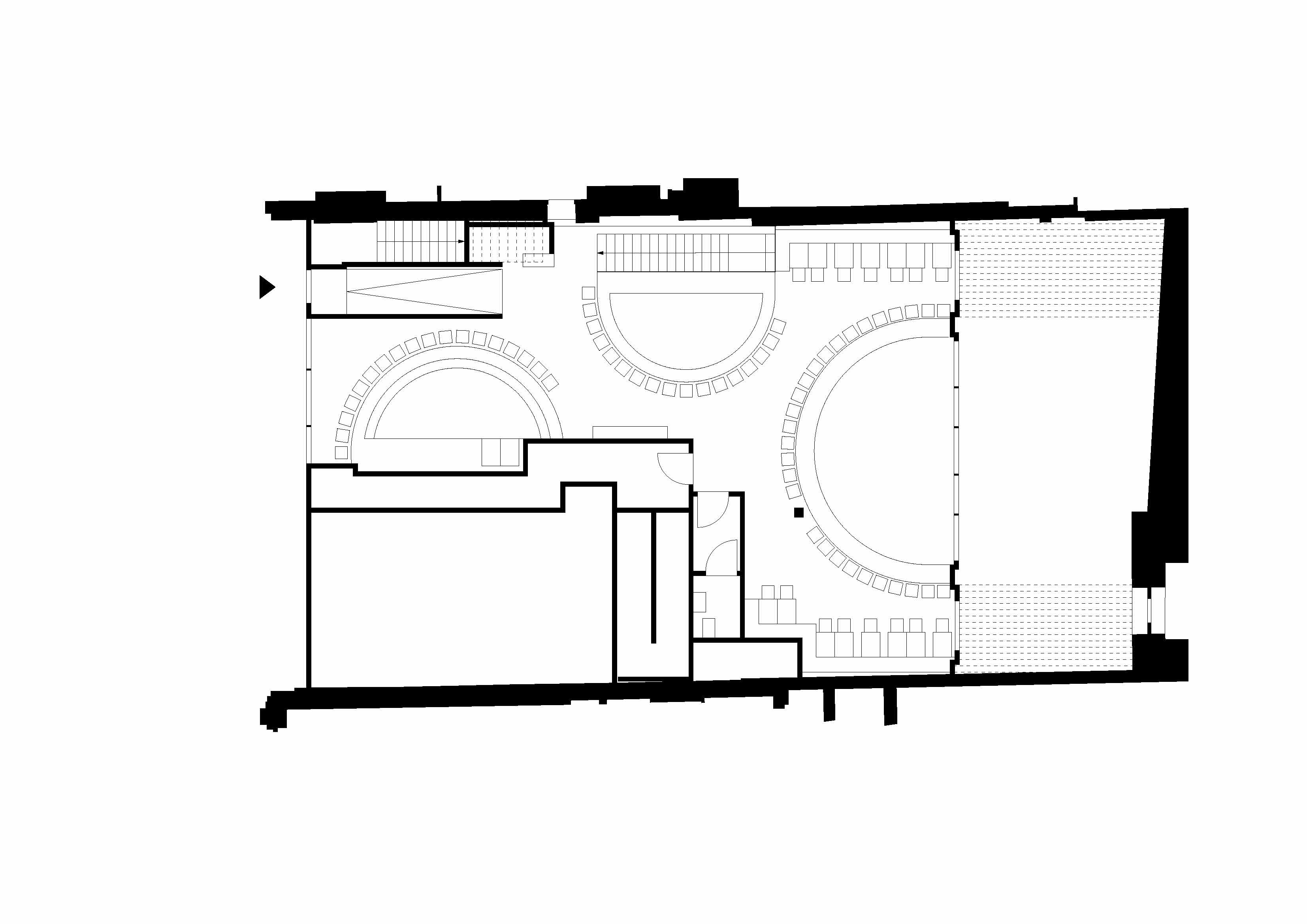
MACH gestaltete ein klar strukturiertes und zugleich offenes Layout, das eine Flächennutzung von 60% für den Gästebereich ermöglichte. Basierend auf der chinesischen Tradition handgeschnitzter Möbel entwarf MACH eine kleine Mobiliarkollektion, welche die Werte von Ping Pong reflektiert.
Grosse Gemeinschaftstische aus nachhaltig produzierter, dunkel gebeizter Schweizer Eiche widerspiegeln den Sinn für Authentizität und Natur. Das Essen wird auf leicht schimmernden Einsätzen aus Onyx-Glas in der Mitte des Tisches serviert und geteilt, ein Ausdruck der gemeinschaftlichen Tischkultur von Ping Pong. Die durch MACH kreierte Innenausstattung schafft einen Wiedererkennungs-Effekt und bildete die Basis für die internationale Erweiterung des Ping Pong-Netzwerks. Mittlerweile ist die Kette auf sieben Restaurants in London, zwei in Washington D.C., zwei in Sao Paolo und eines in Dubai angewachsen.



Grundriss OG

Grundriss EG