Ort: Mumbai
Aufgabe: Entwurf, Detail- und Ausführungsplanung
Zusammenarbeit: Opolis Architects, Mumbai
MACH was commissioned to redesign the Swiss Consulate General in Mumbai. The aim was to create a gathering and communication platform under the auspices of the consulate. The challenge was to implement Swiss values in a visually appealing way while still meeting the security requirements of the organization abroad.
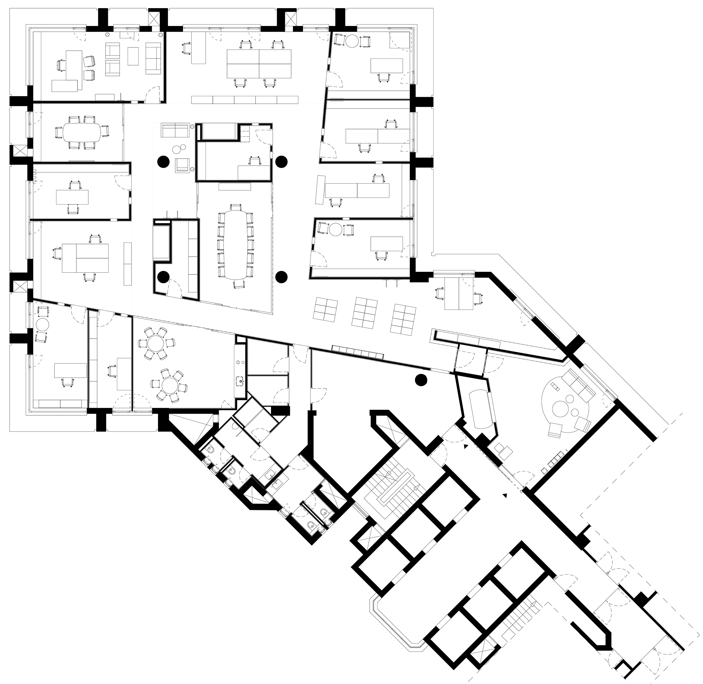
The Consulate General Mumbai served as a pilot project to redefine Swiss consulates. Due to a reorganization of consular services, new areas were created for the Swiss Business Hub, Swissnex and Switzerland Tourism.
MACH developed an overarching material concept to accommodate the expanded uses of the space.
The four departments were organized around a common center - analogous to a village and its main square. The spatial and visual connections and programmatic mixing promote synergy between the departments.






Grundriss